Od fundamentu zależy wszystko

Trwałe rozwiązania pod konstrukcje kamienne

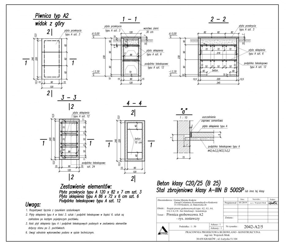
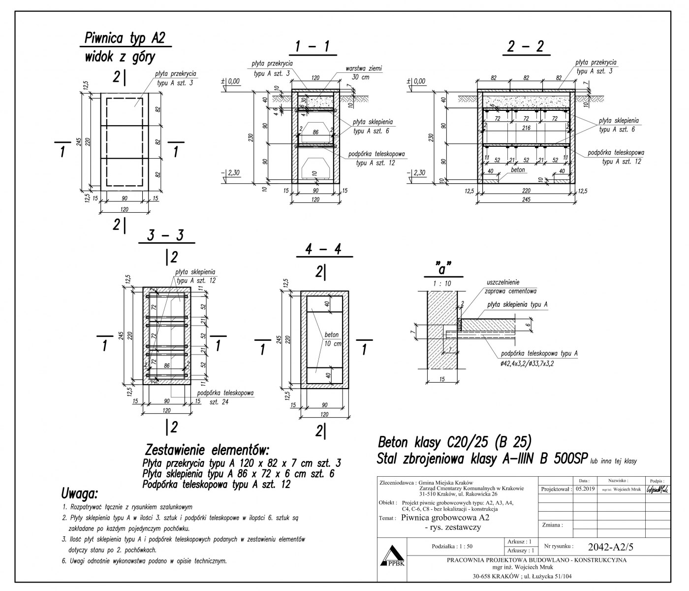
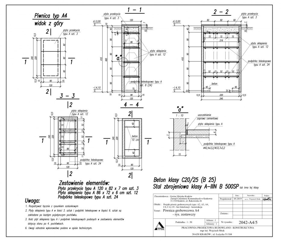
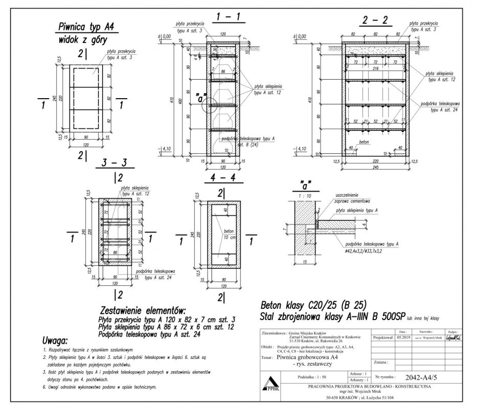
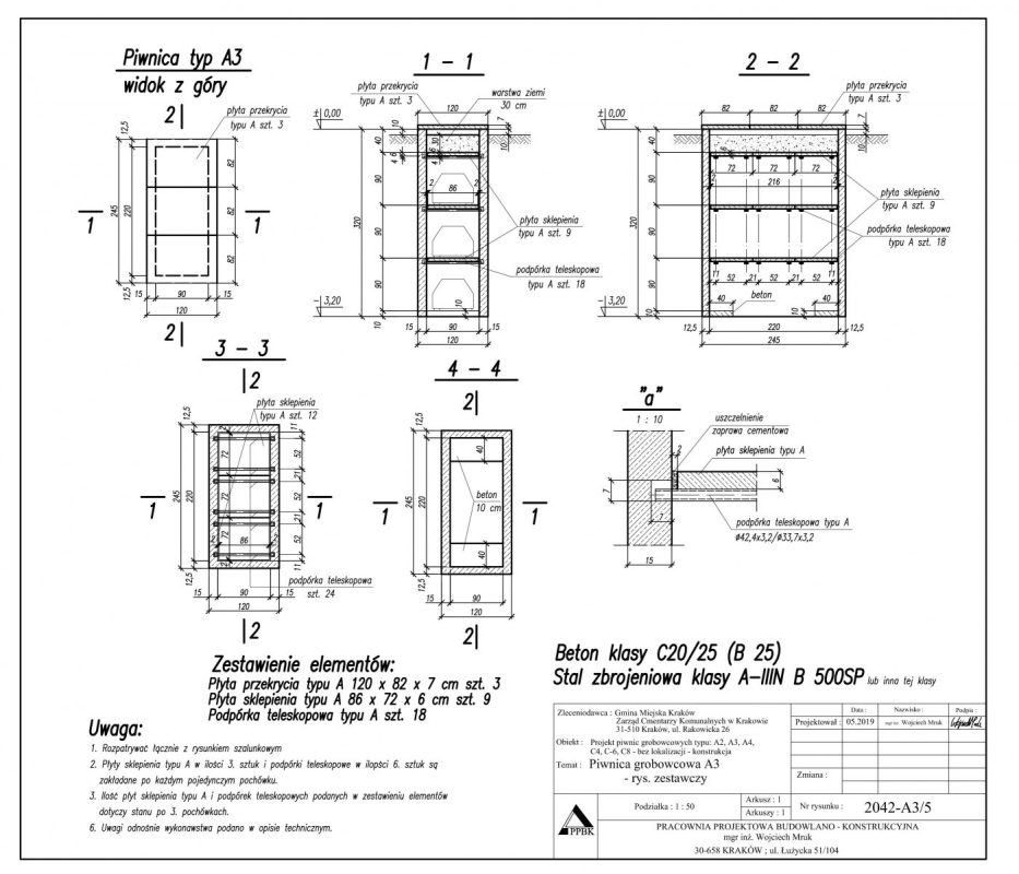
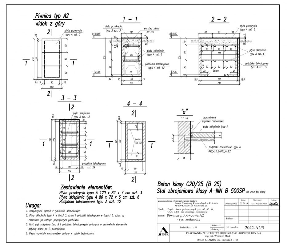
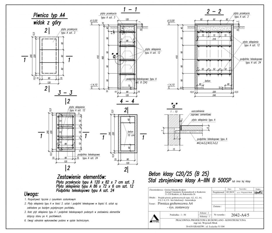
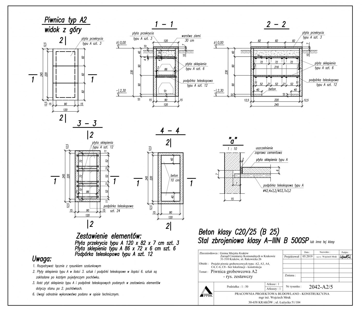
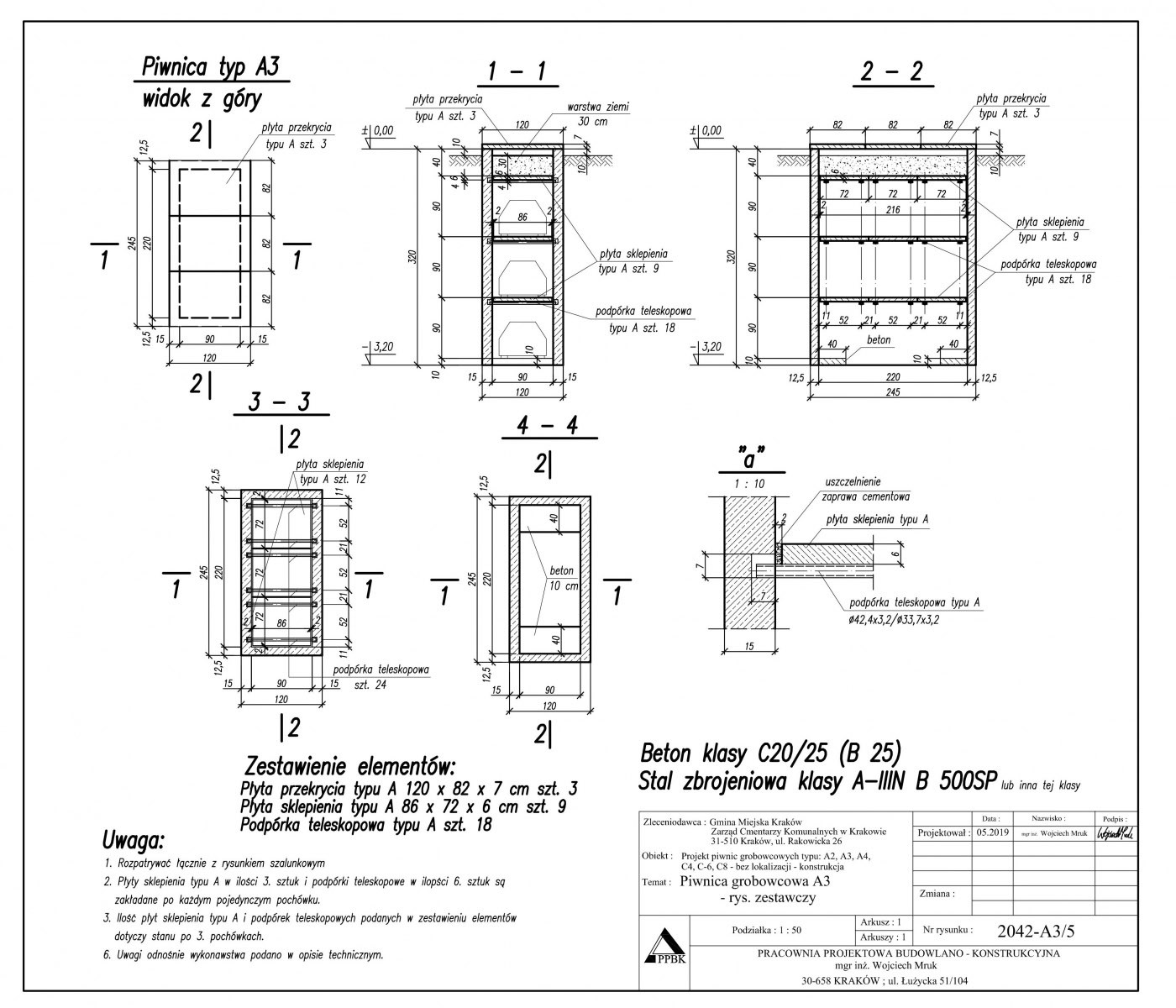
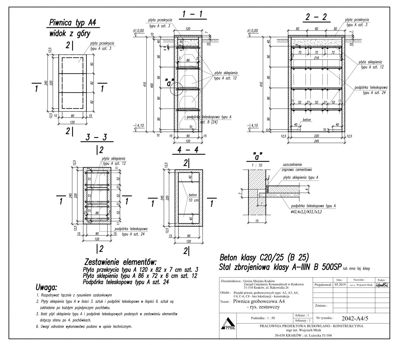
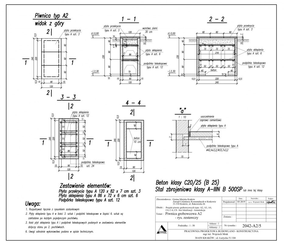
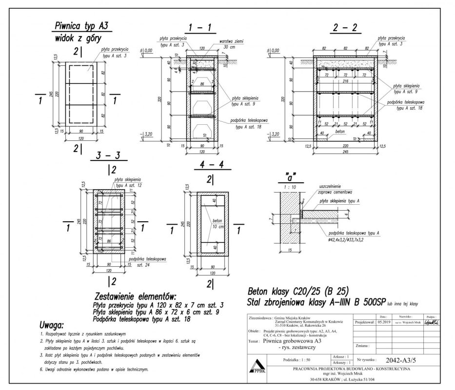
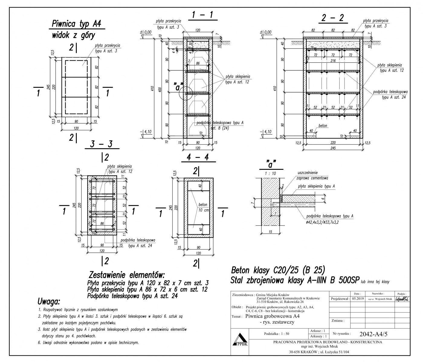
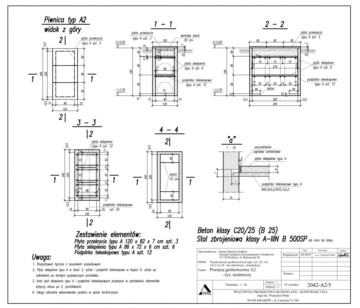
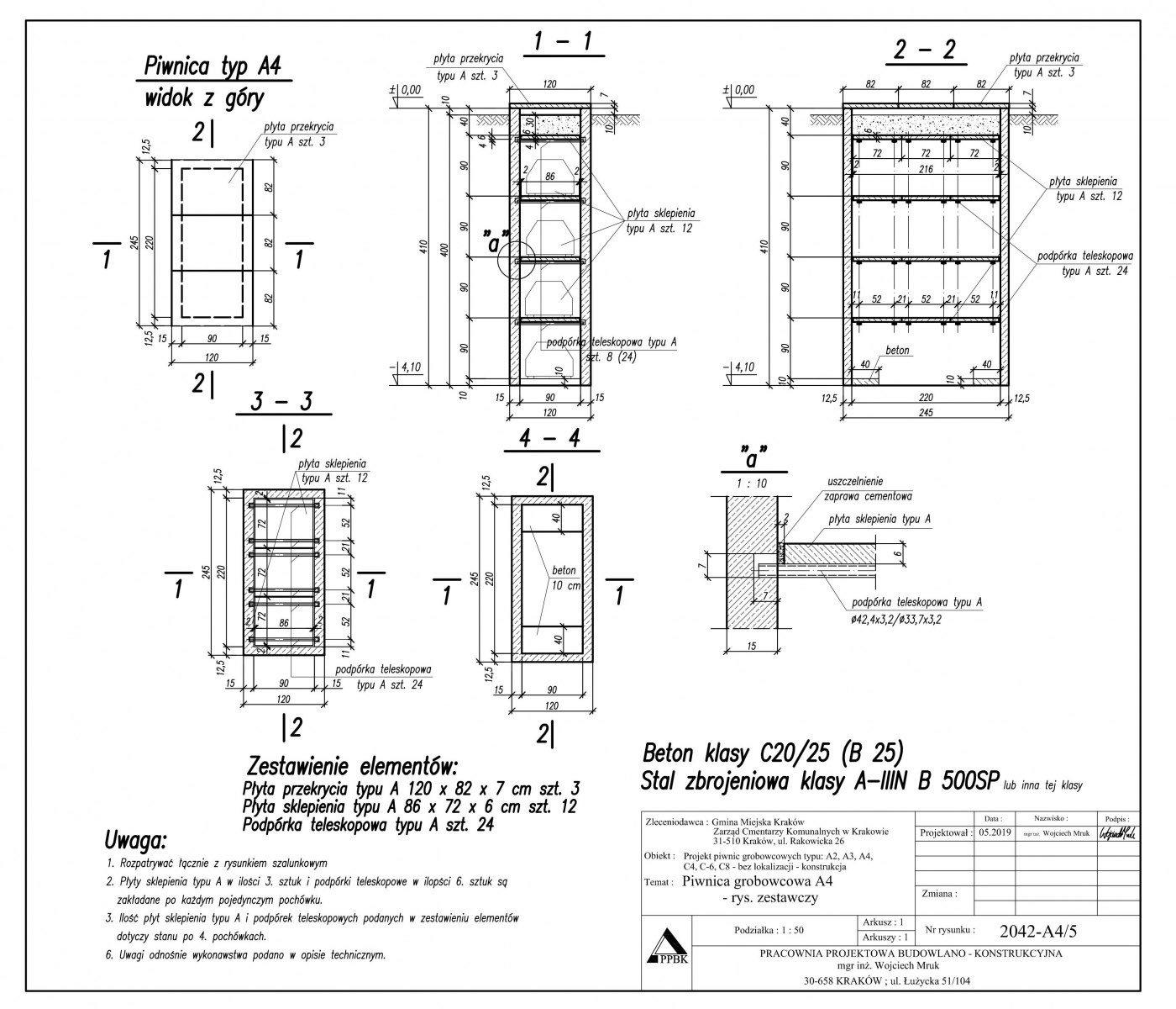
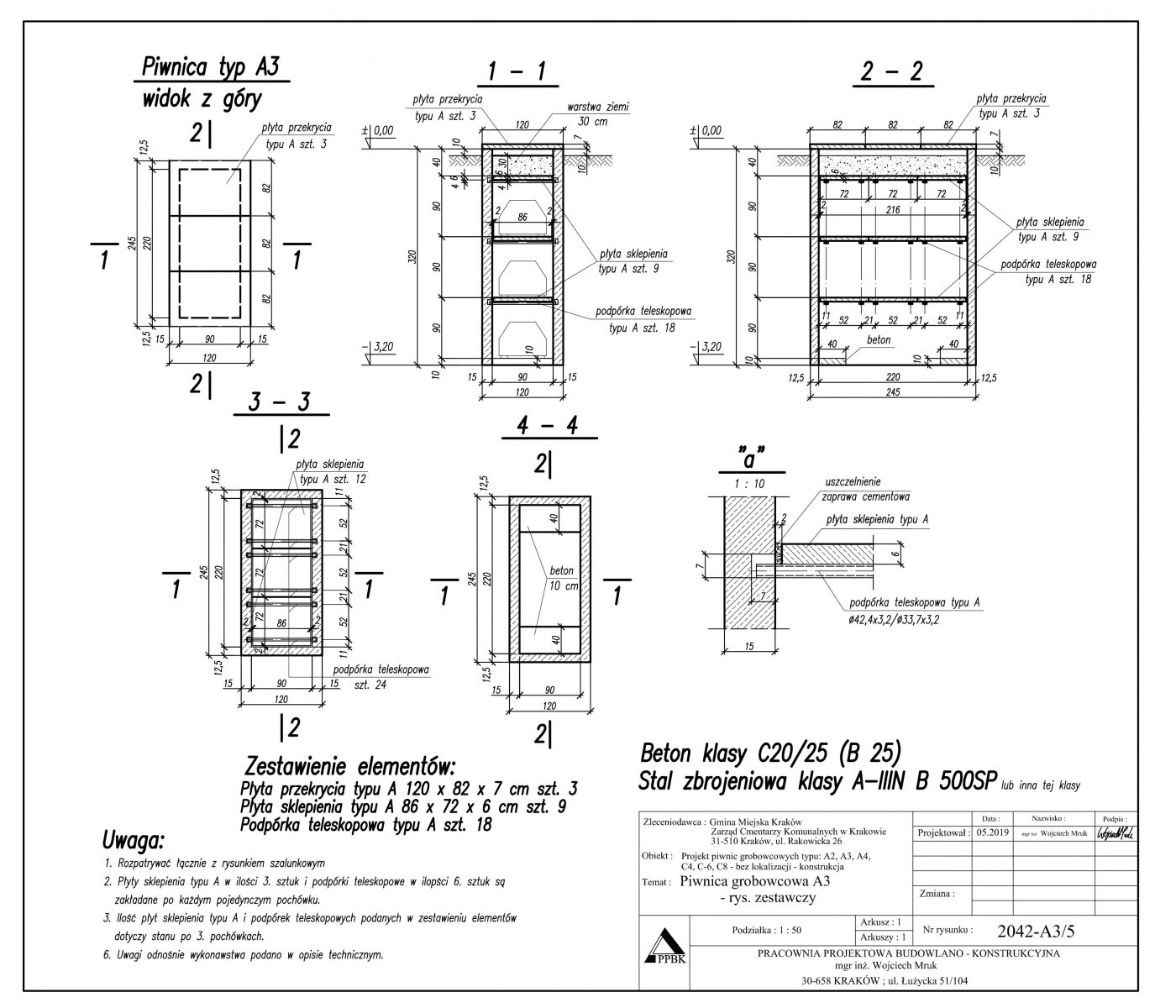
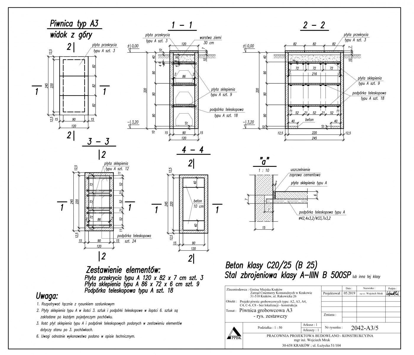
Piwnice grobowe

Wykonujemy piwnice grobowcowe:

  • pojedyncze – na 2 do 4 miejsc,
  • podwójne – na 4 do 8 miejsc,
  • potrójne – gdzie ilość miejsc uzależniona jest od procedur na danym cmentarzu.

Czas realizacji wynosi około 30 dni roboczych. Termin ustalany jest przy podpisywaniu umowy.
Wykonujemy również piwnice bezpośrednio przed pogrzebem, w czasie od 4 do 7 dni roboczych – w zależności od wielkości piwnicy.

PIWNICE URNOWE

Piwniczka pomieści kilka urn.
Czas realizacji wynosi przeważnie do 2 dni roboczych.
Poniżej zamieszczamy przykładowe zdjęcia z budowy piwniczki urnowej:

PIWNICE EKSPRESOWE

Piwnice wykonywane bezpośrednio do pogrzebu.
Terminy realizacji wynoszą odpowiednio:

  • piwnice grobowcowe pojedyncze (2 – 4 miejsc) – od 3 do 5 dni roboczych,
  • piwnice grobowcowe podwójne (4 – 8 miejsc) – od 5 do 10 dni roboczych,
  • piwniczki urnowe do pogrzebu – do 2 dni roboczych

Terminy realizacji są ustalane indywidualnie, przy podpisywaniu umowy.